Ixia Fixation

Vos accessoires et fixations métalliques sur mesure

deco ixia Pattes équerres - ML MC

Pattes équerres

1 - Caractéristiques principales

Pattes équerres : M
Matière: acier galvanisé à chaud 1er choix DX51 D Z275 MA
Norme Européenne: NF EN 10327 (janvier 2005)
Epaisseurs: 12/10, 15/10, 18/10 ou 20/10
Formes : ML, MC
Côtes maçonnerie en standard : de 40 à 70
Côtes menuiserie en standard : de 40 à 150
Largeurs de bande en standard : 30 et 40
Dégagements : de 0 à 100
Marquage V000 : résistance au vent
PV d’essai sur demande.

2 - Variantes

Réversible
15 poinçonnages différents possibles.

3 - Sur mesure

Nous consulter.


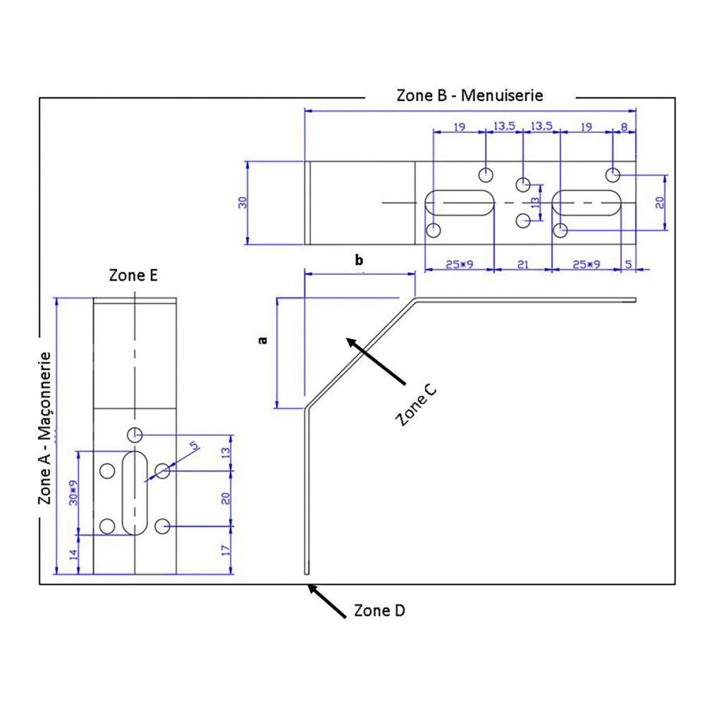
Plan de principe général

ZONE A - Oblong de 30*9 pouvant recevoir une cheville de 8 mm et sa vis tête plate ø 6 mm

ZONE B - Oblong de 30*7 permet le passage du goujon de l’insert et le clipage éventuel d’une cale de rupture de pont thermique. Un ou plusieurs ø de 5,5 mm sont prévus pour un vissage complémentaire

ZONE C - Dégagements de tapée standard 4040 (autres dégagements nous consulter).
 
La référence se crée en ajoutant à la suite du code du modèle MC40, les dimensions de A, B,
C, D ,E. A titre d’exemple : MC40 70*95 4040 1,5 (correspond à MC (E) (A)*(B) ab (D)).
Patte de MC40 70*95 avec un dégagement de 4040 et une épaisseur de 1,5 mm.

Des solutions optimisées et industrielles